REF. 2519/20 - Bodega comercial en renta en Monte de los Olivos, San Cristóbal de las Casas, Chiapas
Descripción
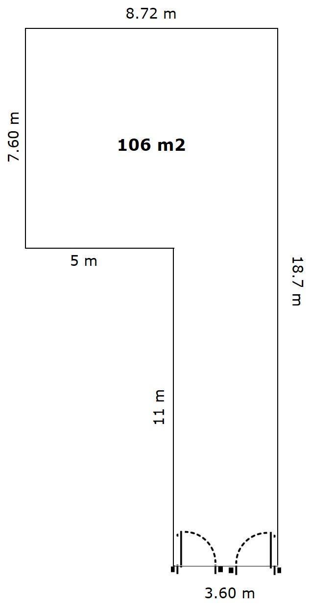
Bodega en renta en Monte de los Olivos en San Cristóbal de las Casas.
A solo 20 metros de la calle El Sumidero, una de las principales vialidades con mayor conectividad en San Cristóbal de las Casas.
Su ubicación estratégica la posiciona cerca de zonas comerciales clave como Merposur, Mercaltos, Sam's Club y Bodega Aurrera, además de servicios como High Padel Club, OXXO y El Deportivo SC, lo que garantiza alto flujo vehicular y peatonal.
Ideal para bodega, almacén, centro de distribución o punto de operación comercial, gracias a su excelente ubicación, fácil acceso y cercanía con zonas de alto movimiento comercial.
Contacto
- Oficina: 2519 - Alfa Inmobiliaria 360i
- , San Cristóbal de las Casas, Chiapas
- Teléfonos: 9673647739
- Whatsapp: 9673647739
- Email: [email protected]
- Web: www.alfa360i.com
Información
- Precio de renta: 12,000 MXN
- Año de construcción : 2015
- M2 construidos : 106 m2
- Á total útil : 106 m2
- M2 terreno : 106 m2
- Medios baños : 1
- Estado de conservación : buen estado
- Puerta : otros.
- Suelos : concreto de alta resistencia.
Comparte esta Propiedad:
WhatsApp
Facebook
Twitter
Email